無錫不銹鋼板廠家無錫漢能不銹鋼2020年6月7日訊 不銹鋼制件具有良好的抗高溫氧化性、抗腐蝕性,在五金、餐飲、醫療及航空航天等領域應用廣泛,需求也不斷增加,對該類制件的表面質量要求越來越高。相比于其他鋼材,不銹鋼具有屈服強度高、屈強比小、均勻延伸率大、硬化指數高的特點,正是由于這些特點,不銹鋼板料拉深成形性能良好,但是容易出現制件起皺、開裂和模具零件粘結瘤等缺陷。通過調整模具結構和成形工藝參數,制件起皺與開裂能有效避免,但模具零件粘結瘤的形成機理比較復雜,目前沒有較好的解決方案,這是不銹鋼制件在拉深成形過程中的難題。從宏觀角度觀察,板料表面與模具零件表面無縫貼合,載荷作用于接觸面上。從微觀角度觀察,板料表面與模具零件表面均凹凸不平,二者實際工作狀態為非連續接觸,載荷實際作用于局部凸起部位,如圖1所示。

圖1 板料與模具零件接觸面微觀狀態

(b)制件表面劃傷
圖2 模具零件的粘結瘤與制件表面劃傷
由于不銹鋼材料的特性,成形時需要較大的壓邊力,實際工作狀態下,潤滑油承受高溫、高壓及運動剪切力,局部潤滑油膜易變薄、破裂,出現干摩擦區域,摩擦力瞬間增大。板料表面局部凸起與模具零件表面凸起均受到與運動方向相反的剪切力,最終板料凸起部位被刮掉。在高溫、高壓的環境下,板料材質與模具零件材料親和力較好,碎片將軟化、熔化、枯焊在模具零件表面上,碎片隨拉深的進行不斷粘附在模具零件表面上,最終形成粘結瘤,成形的制件表面被劃傷,如圖2所示。由粘結瘤的形成過程可知,其產生與高溫、高壓、摩擦、材料親和力有較大的關系。由于高壓與制件材料性質有關,不可更改,防粘結瘤方案的選擇只能從高溫、摩擦、材料親和力3個方面考慮。

圖3 不銹鋼制件

圖4 制件1拉深工序
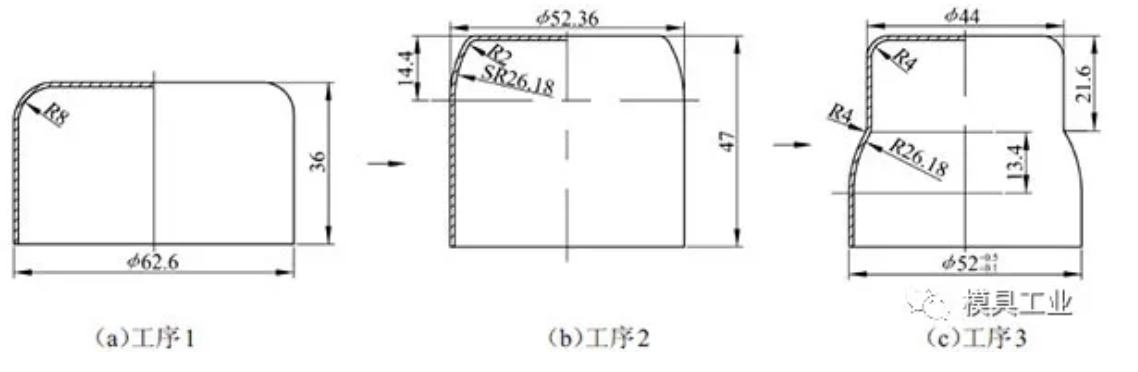
試驗所成形的不銹鋼制件如圖3所示,均由圓筒形、球形組成的復合形式階梯型制件,材料均為1Cr18Ni9Ti,料厚均為1mm,其中,制件1的坯料直徑為?107mm,3次拉深成形工序件的尺寸,如圖4所示。拉深模工作部分零件材料選擇T8A或Cr12MoV等,粘結瘤問題較嚴重。模具零件表面與成形制件表面均出現嚴重劃傷,模具返修率較高。針對粘結瘤形成機理,不銹鋼拉深模防粘結瘤方案擬采用以下2種方式。

研究發現,銅合金作為模具零件材料具有導熱性能好、耐磨性好、無需表面處理、與不銹鋼親和力較弱等優點。鋁青銅TS4作為銅基合金中的一種,具備上述優點。鋁青銅TS4的性能參數與Cr12MoV對比如表1所示,鋁青銅TS4作為不銹鋼拉深模零件材料,成形過程中能快速散熱、避免粘結,有效避免粘結瘤的產生。
TD處理即熱擴散法碳化物覆層處理(thermal diffusion carbide coating process),是通過高溫擴散作用于模具零件表面形成一層數微米至數十微米的金屬碳化物覆層的表面處理技術。該覆層具有較高的硬度,熱處理硬度可達3600HV左右。由于TD處理溫度高達1000℃,材料受限,多適用于含碳量高于0.3%的各類鋼材。研究發現,對Cr12MoV冷作模具鋼進行TD處理,表面VC涂層與不同摩擦副配對,發現與鋼柱配對時摩擦因數最小,磨損率最低。經過TD處理的零件工作部分耐磨性增高、摩擦系數降低、抗咬合性能增強,同時該部分表面粗糙度等級高,提高了材料的抗粘合性。TD處理與傳統工藝的主要參數及性能對比如表2所示。

目前防止產生粘結瘤的研究大多數集中于鋁青銅TS4等模具零件材料與潤滑油的研究,而將TD處理運用于不銹鋼制件多次拉深模上,特別是將TD處理與鋁青銅TS4組合運用,該類研究還未見報道。

(a)凹模(壓合式)

(b)壓邊圈(螺釘連接式)
圖5 鑲拼結構
(1)鑲拼結構。由于鋁青銅脆性大、可加工性能差、價格高。試驗中需使用鋁青銅TS4材料的模具零件部分均采用鑲拼結構,內置鑲件采用鋁青銅,外緣采用45#鋼。根據使用鋁青銅的模具零件部位不同,鑲拼結構又分為壓合式(鑲件帶有錐度)與螺釘連接(鑲件無錐度)2種方式。試驗中凹模均采用壓合式,壓邊圈采用螺釘連接方式,鑲拼結構如圖5所示。

(a)拉深模三維模型

(b)實際模具
圖6 拉深模三維模型及實際模具
(2)導柱導套。無導向裝置的拉深模在機床上安裝合模時,需要反復調試。初始拉深成形的若干件制件均會報廢,浪費時間和浪費材料,為了解決上述問題,試驗中拉深模上下模導向裝置采用導柱導套(左右兩導柱直徑不同),如圖6所示。拉深模主要工作部分包括凹模、凸模、壓邊圈等。由于凹模及壓邊圈與不銹鋼板料之間存在相對滑動且承受較大的載荷,粘結瘤現象嚴重。凹模與壓邊圈需要進行防粘結瘤設計:工作部分選擇鋁青銅TS4材料(無熱處理)或含碳量大于0.3%的普通鋼材并進行TD超硬化表面處理;凸模與不銹鋼板料之間無相對滑動,無粘結瘤的產生,凸模選擇一般材料及熱處理方式即可(試驗選擇Cr12MoV材料,熱處理硬度56~60HRC)。

試驗所選用研究對象均需多次拉深的階梯型不銹鋼制件,除工序1外的其他所有工序,壓邊圈處均存在薄壁部分(中空結構),最薄壁厚處僅約0.7mm(見圖6)。由于鋁青銅硬度38~45HRC,脆性大,拉深過程中容易發生脆裂,具有薄壁特征的壓邊圈不宜采用鋁青銅TS4,應選用TD處理技術,成形所用的8副拉深模零件材料及其表面處理方式如表3所示。一般為了減少或防止粘結瘤的產生,不銹鋼拉深模需使用特殊研制的潤滑劑,如2#潤滑油、納米銅潤滑劑、丙烯酸清漆等。由于模具零件工作部分使用鋁青銅TS4與TD超硬化表面處理技術,潤滑劑選擇普通種類即可,試驗所用潤滑劑為聚氯乙烯。運用三維建模軟件CATIA,完成拉深模的三維數字模型設計。經檢測,試驗中經過TD處理的模具零件表面呈現鏡面,硬度約3100HV左右,滲層厚度達15μm,拉深模三維模型及實物見圖6。

(a)制件1

(b)制件2

(c)制件3
圖7 拉深成形不銹鋼制件
在1000kN機床上進行拉深模試模,每副拉深模試制成形7件不銹鋼制件,完成8副拉深模(總計56個制件)試模僅用1天(8h),拉深成形不銹鋼制件實物如圖7所示。
▍原文作者:李欣芮1,2,王曉康1,2,何萬飛1,2
▍作者單位:1.成都飛機工業(集團)有限責任公司技術裝備公司;2.四川省航空智能制造裝備工程技術研究中心